La modificación urbanística a medida del Banco Santander descartó efectos sobre el tráfico por la ocupación del arco
El Proyecto Faro, el nombre que el Banco Santander ha puesto a su proyecto cultural para la que fue su oficina principal, requirió una modificación expresa del Plan Especial de Protección del Paseo Pereda y Castelar.
Se trata de una normativa urbanística que vela por la protección estética y patrimonial en una zona que suma valores arquitectónicos o históricos.
El proyecto del Banco Santander, llevar a la que fue su oficina número 1 su colección artística, incluía en el diseño del prestigioso arquitecto David Chipperfield, una serie de elementos que no encajaban con esa normativa, desde el espacio añadido a la altura para ganar un mirador y un espacio multiusos hasta la ocupación que se hace del emblemático e identitario arco del triunfo del banco, por el que habrá escaleras de acceso.
En el caso del Banco, no es la primera vez que si algo hace que sus planes no encajen, se cambie el algo en lugar de los planes. En este caso, ese algo era el citado Plan de Protección del Paseo Pereda, para el que el Ayuntamiento tramitó una modificación de forma que el nuevo documento resultante, con esos cambios incorporados, ya permitiera la reforma del edificio.
La alcaldesa de Santander, Gema Igual, confirmaba esta semana en un acto a medida para que desgranara planes y proyectos, que al ocuparse el espacio bajo el arco sí que se limitará el espacio de vehículos, privados o públicos (es por allí por donde pasa la popular línea circular 5, muy usada por personas mayores para bajar de El Alta/Paseo de Altamira al centro). Era algo sobre lo que había advertido días antes el portavoz de IU en el Ayuntamiento, Keruin Martínez y que no había trascendido hasta la fecha.
De hecho, estos efectos fueron descartados expresamente en la modificación de la normativa urbanística a medida del Banco, un paso durante el cual se estudiaron varias alternativas de intervención en el edificio.

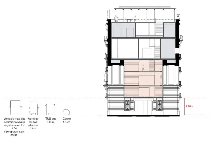
Obras Proyecto Faro Banco Santander
Según refleja la documentación de ese trámite, repasada por EL FARADIO, en la alternativa elegida, la E, “se verifica que la ocupación bajo el arco no afecta a la movilidad de vehículos en la calle que existe por debajo”.
Este argumento fue uno de los que inclinó la elección de esta variación respecto a otras de las estudiadas (que se movían entre no hacer nada de obra o sumar alturas). Con esta, se defendía la compatibilidad de la ampliación con la circulación rodada existente.
Esta ampliación del edificio, admitía el documento, «reduce el gálibo existente actualmente, hasta una altura de 4.50, en concordancia con los mínimos establecidos en las Ordenanzas Municipales del municipio de Santander».
Pero la evaluación incorpora una sección «que demuestra que la actuación bajo el arco permite la circulación de todo tipo de vehículos, lo que asegura que no se afecta a la movilidad ni a la libre circulación local».
Y no era la única opción que se estudió que no suponía afecciones al tráfico: también se cita esto literalmente en la alternativa C4, “se verifica que la ocupación bajo el arco no afecta a la movilidad de vehículos en la calle que existe por debajo”.
Para ambas, la finalmente elegida y la luego descartada, se señalaba que tenían un desarrollo “equilibrado” que “no afecta al tráfico habitual, ni al de autobuses, ni vehículos de emergencia”.
Es más, en el resumen de todas las opciones estudiadas y los motivos por los que se eligieron o descartaron, se concluía que ninguna tenía impacto en la movilidad urbana, objeto de especial estudio a la hora de evaluar y elegir las opciones.
En cuanto al resto de opciones descartadas, el documento señala que algunas alternativas que implicaban mayores crecimientos en altura fueron rechazadas por su impacto visual. Otras que planteaban ampliaciones bajo rasante de mayor intensidad fueron descartadas por su afección al subsuelo.
📣 Rompe el algoritmo y decide tú de lo que se habla. Comparte esta información y abre debate sobre urbanismo y transparencia.
🚍🏛️ Podemos seguir informando sobre planificación, movilidad y control ciudadano gracias a apoyos como el tuyo. Súmate a la comunidad por 8 euros al mes en https://www.elfaradio.com/hazte-socio/
Noticias relacionadas:
- ‘Santander es Ella, no Él’: Xtinction Rebellion anima repensar los valores la ciudad frente al poder del banco
- Banco Santander: un gigante cada vez más sujeto a los fondos de inversión
- Las ‘amistades peligrosas’ del Banco Santander
- La reforma de la Plaza de Italia adjudicada a COPSESA creó el marco para ejecutar el tanque de tormentas de El Sardinero
- El nuevo contrato de basuras, una autoenmienda a la propia gestión municipal… sin garantías claras de cumplimiento